Shkrub House - будинок архітектора Сергія Махна під Києвом
Architects : Sergey Makhno Architecs
Photos © Serhii Kadulin
Shkrub House by Ukrainian architect-designer Sergey Makhno became the winner of the
international architectural competition IIDA Global Excellence Awards. The house under
the reed roof was recognized as the best in the category "Large residences" due to its
unique style - the interior is designed in a style that the authors call modern Ukrainian.
Shkrub House architect Sergei Makhno built for his family in Kozin, an elite village
near Kyiv. In a two-level building, modern technologies and design solutions are
intertwined with interior elements traditional for Ukraine. The roof of the house is
covered with reeds, and the walls inside the house are finished clay - in the
technique that was used in old huts-huts, collectible utensils plus
original author's ceramics from Makhno.
The competition jury evaluated the submitted projects based on the relevance of the applied
design solutions, the level of materials used, as well as excellence, creativity, functionality
and aesthetics. Shkrub House was the only winner from Ukraine. Another project of Sergey
Makhno studio Architects became a finalist of the IIDA 2020 Global Excellence Awards —
in the nomination "Small Residences" the interior of the Kyiv apartment
Mazanka Apartment came out became a finalist.
Jury member Alexandra 'Sandy' McGill, lead designer at Designworks USA (BMW Group
Company), who designed the BMW 3, Mini and rebuilt the brand Rolls-Royce said at the
awards ceremony in Chicago:
“Shkrub House is a fantastic expression of the owner's personality,
heritage and collections. Surfaces and spaces are rich in shapes, textures and
colors. We are presented with a completely unusual interpretation of a family home.
This house makes me really want to get to know the family that lives there. Bravo !"
The studio Sergey Makhno Architects noted that the house was built in a modern Ukrainian
style under the influence of the Japanese philosophy of wabi-sabi, which finds harmony and
beauty in imperfection. The architect, while working on Shkrub House, drew inspiration
from trips to Japan, which prompted him to decide garden in Japanese style with sculptures.
Sergei Makhno: “When I first came to Japan and saw how they value their heritage, I
realized that the Ukrainian the culture is extremely rich, but we rarely appreciate it highly.
The house is filled with a large collection of Ukrainian ceramics, and the walls are covered
with various types of ceramic tiles, where ordinary clay is mixed with seeds of wheat, rye
and flax. The site is almost completely enclosed by a minimalist concrete fence, and the
roof of the house, covered with reeds, hangs over the wooden slats that decorate the facade.
These materials are traditional both for Ukrainian, and for Japanese cultures. The
architect and ceramist Sergey Makhno himself says that his search for a truly
Ukrainian home began with this house.
Makhno's collection of pottery is presented in special shelving, assembled from
old wood collected in abandoned houses.
Sergey Makhno :
“This is the house that started the search for a Ukrainian home — a journey that will
take years, maybe even lifetimes. What is he? What appears in your imagination when
you hear "Ukrainian House"? Soviet apartment or house in the village? I dream of
finding that foothold. And the fact that our Ukrainian design, our traditions are
recognized all over the world over and over again really gives
me strength and inspiration.”
Sergey Makhno :
"What was the main idea behind the interior design? Make this house a home for its inhabitants.
After all, you can make it comfortable, fashionable, but a native place from this does not become.
This is how traditions appeared - our connection with our ancestors, our addictions were
displayed. The very name of the house - Shkrub House - came from a family lexicon, as
we call each other. In my own home, I conduct experiments that most clients are not
yet ready for - before this at home they are not believed that Ukrainian craft
traditions, contemporary art, high technology and comfort could be
combined in one house."
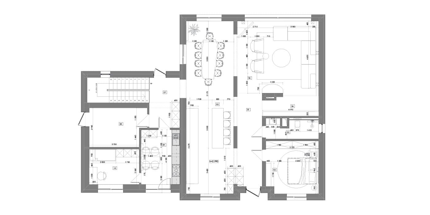
The original staircase leads to the second floor, where a number of bedrooms
and guest rooms are located around the common room.
Previously, Shkrub House by Sergey Makhno Architects received the Grand Prix of
the Ukrainian competition Interior of the Year and "gold" at the International
Design Awards, A' Design Award & Competition





















































No comments:
Post a Comment