Hillside Villa Nemes in Liguria, Italy
Architect: Giordano Hadamik Architects / Photos © Giordano Hadamik Architects & Flexform
Villa Nemes - постройка на лигурийском склоне, прекрасно вписанная
в живописный ландшафт, спроектирована архитектурной студией Giordano Hadamik
Architects ( офисы в Дюссельдорфе и Андорре ) как дом отдыха для семьи, которая
живет в Германии. В доме простая планировка и много места для размещения гостей.
Giordano Hadamik Architects : «Это место - убежище от повседневной жизни, место,
где можно расслабиться и соединиться с природой. Большие оконные проемы
пропускают много света и открывают великолепные панорамы на долину и море».
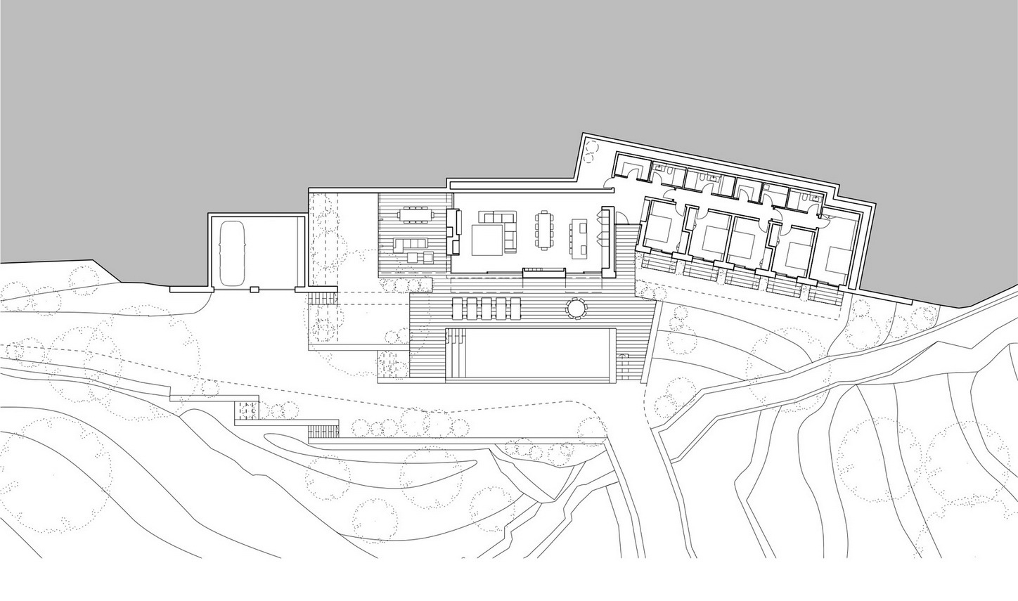
Villa Nemes состоит из двух блоков, расположенных на склоне холма.
В одном блоке пять спален и три ванные комнаты, а другой представляет собой
пространство со свободной планировкой для обедов, отдыха или развлечений. Имеется
также отдельный гаражный блок. Наружные стены сложены из натурального камня,
следуя местным традициям, уходящим корнями в прошлое. Экологичность была
одним из основных критериев при проектировании формы здания. Помимо
стен из натурального камня, у здания зеленая кровля и хорошо изолированная
конструкция, которая исключает потери тепла. Через большие окна выходящие на
террасу, в комнаты проникает много естественного света. Летом они раздвигаются,
чтобы жилые помещения "перетекали" в большую террасу с 14-ти метровым
бассейном. Во всем доме полы с подогревом, работающие за счет
солнечной энергии от фотоэлектрических панелей.
Daniele Giordano (Giordano Hadamik Architects) :
«В доме такое ощущение, словно он был здесь всегда...
Присутствует ощущение гармонии и спокойствия; помещения уютные и
удобные, а внутреннее и внешнее пространство плавно перетекают друг в друга...»


























No comments:
Post a Comment